
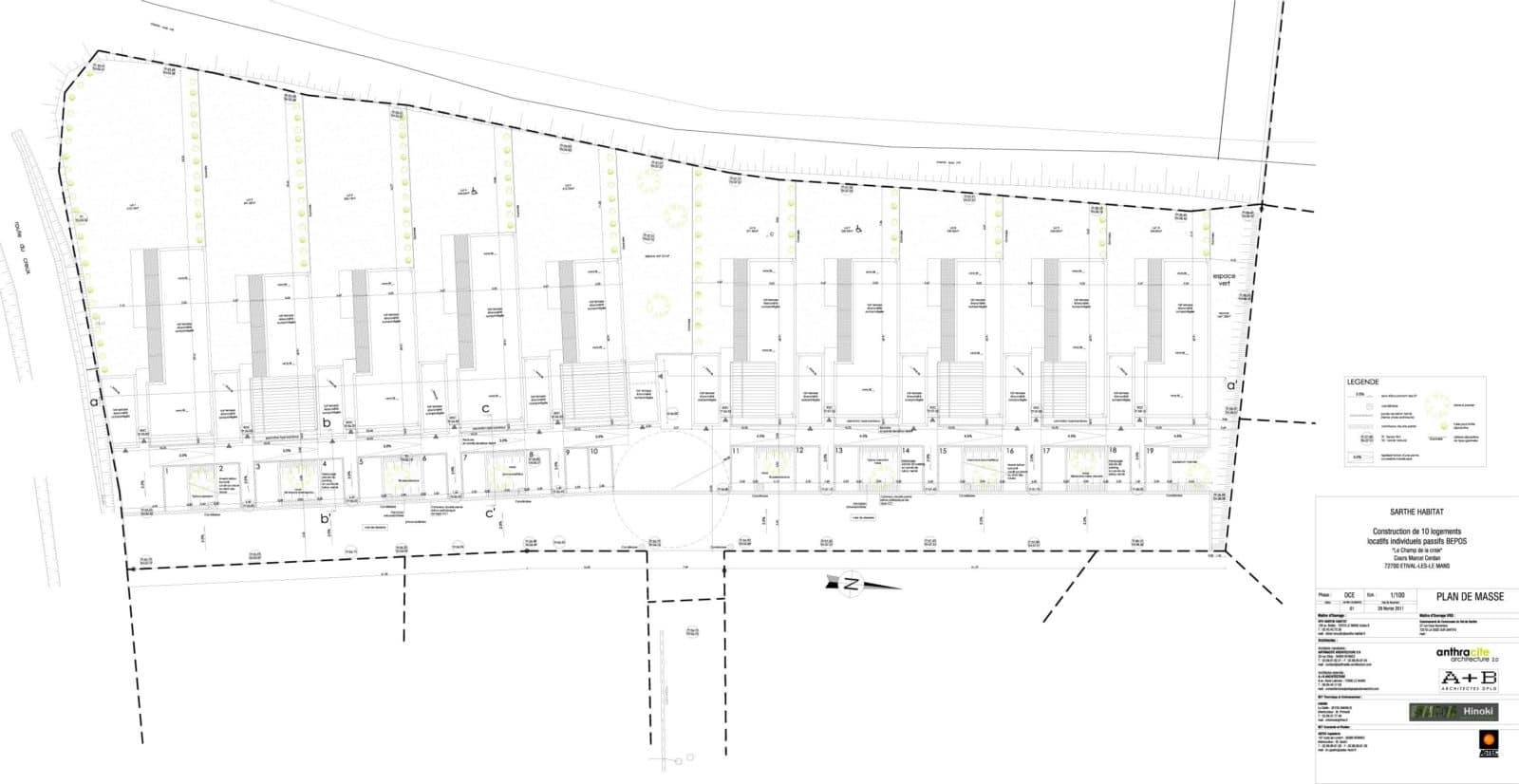
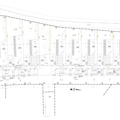
Anthracite Architecture avec Allegre + Bonandrini construisent actuellement 10 logements BEPOS pour le compte de Sarthe Habitat situé à Etival-Les-Le-Mans à l’ouest du Mans. La livraison est programmée pour avril prochain. Les logements s’implantent sur une parcelle en long, décomposés en deux tranches avec au centre un espace commun lié à un chemin rural.

Les logements sont distribués par une allée de couleur sable. La déserte des véhicules se fait par une voie en limite des constructions existantes pour créer un espace tampon. Une noue longe les logements, celle-ci est coupée par les entrées de garage. La noue est principalement constituée de bambou et de roseaux, elle rejette l’eau de pluie dans le fossé route du Creux au Sud. Les jardins sont délimités par une clôture végétale d’un mètre de hauteur.

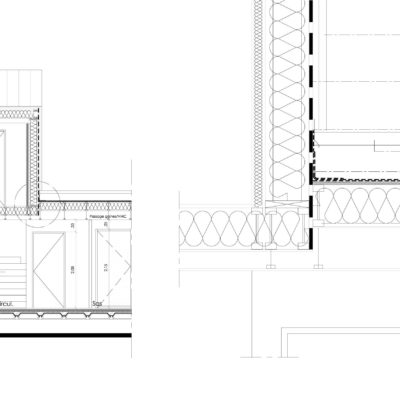
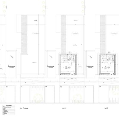
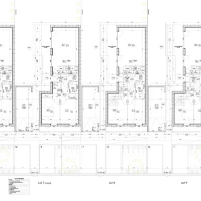
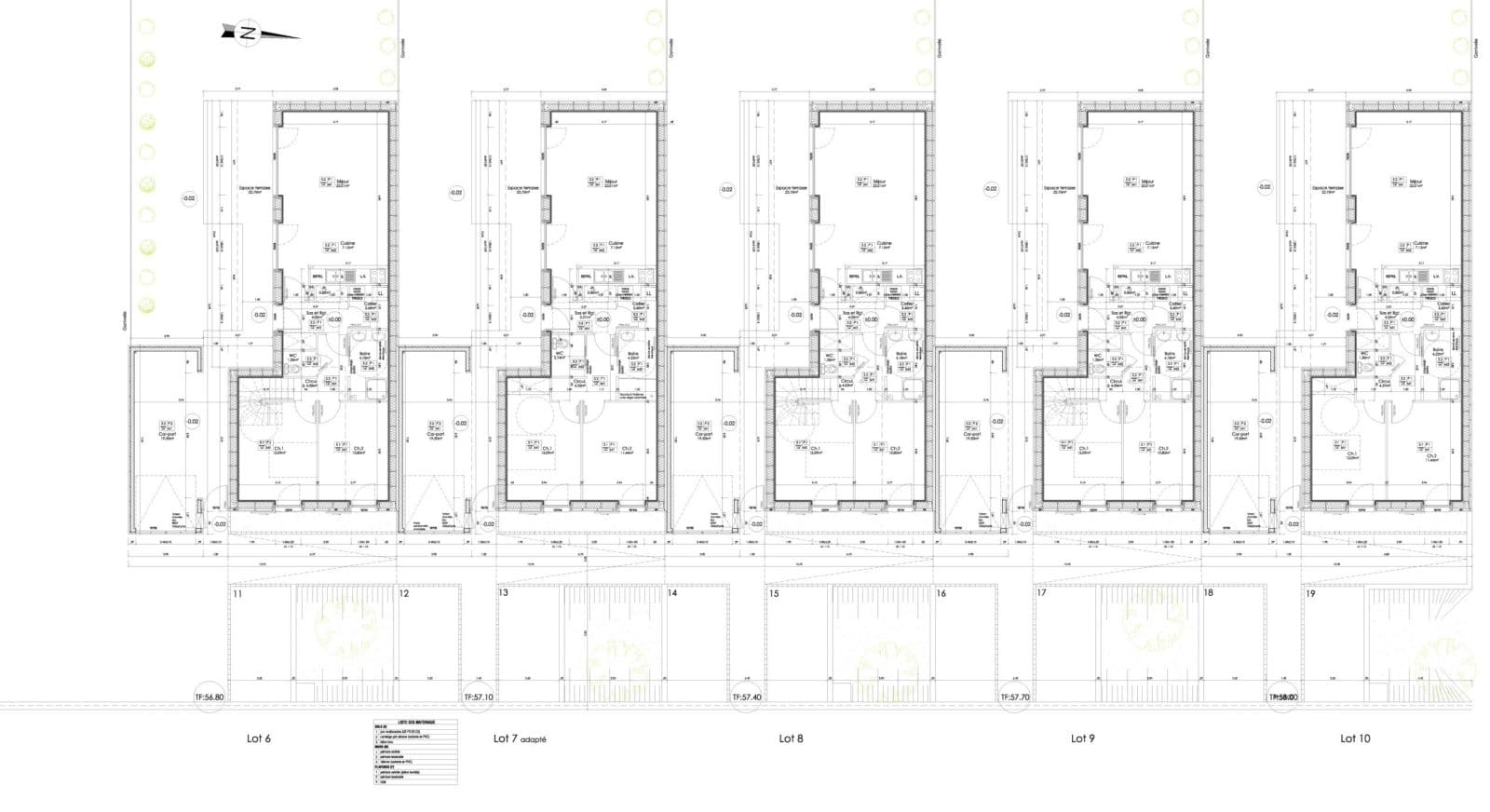
Les logements adoptent le même volume principal qui constitue un T3, celui est annexé par un volume supplémentaire comme un étage ou une extension longitudinale pour constituer un T4 ou un T5. L’ossature bois est remplie par de la ouate de cellulose. Le RDC est doté d’un bardage clairevoie châtaignier accentuant l’horizontalité du projet. Les façades de l’étage sont ensuite revêtues d’un revêtement en zinc.

Du coté, le visiteur aura tendance a sous-estimé le nombre de logement puisque celui-ci identifiera les logements par leur étage, les T3 ne disposant pas d’étage et étant confondu avec le RDC continue. Les étages marquent le caractère des habitations de par la forme de la toiture et de par la continuité de l’enveloppe.

Une casquette équipée de cellule photovoltaïque de 1.40 mètres de large capte l’énergie tout en jouant un rôle de pare-soleil sur la façade sud. La production d’énergie dégagée par les casquettes est comprise entre 1362 et 1834 kWh/an par logement alors que la consommation totale se situe entre 1338 et 1567 kWhEF. Le bâtiment est certifié BBC Effinergie avec une consommation annuelle de 32 kWhEP/m².

- Maître d’oeuvre : Anthracite Architecture
- Architecte Associé : Allegre + Bonandrini
- Maître d’ouvrage : OPH Sarthe Habitat
- Localisation : Etival-Les-Le-Mans, 72, France
- BET Thermique et Environnement : Hinoki
- BET Économie et Fluide : Astec Ingenierie
- Date de livraison : avril 2012
- Surface de la parcelle : 52 100,00 m²
- SHOB : 1 551,52 m²
- SHON : 1 042,32 m²
- SHAB : 819,92 m²
- Budget : 2 022 728 € TTC





















