
La mairie d’Illkirch-Graffenstaden se dotera l’année prochaine d’un nouvel hôtel de ville. Ce programme a pour objectif de réhabiliter ses trois bâtiments actuels et de les unir pour écrire un seul et même lieu, l’hôtel de ville.

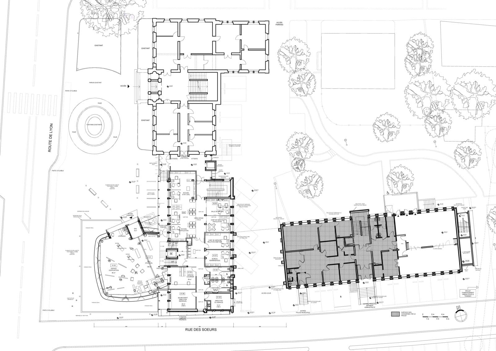
La première phase qui s’achèvera dans les semaines à venir vise à la restructuration de l’ancien tribunal administratif qui est le bâtiment historique où loge le bureau du maire. Notez que cette phase est indépendante du projet, le concours concerne seulement les deux derniers bâtiments. Ils forment l’angle du carrefour de la rue des sœurs et de la route de Lyon. Le premier édifice à côté de la mairie date des années 60 tandis que le second, situé derrière lui date des années 80 et accueille le centre social et administratif de la ville.

La restructuration de l’hôtel de ville passe par une nouvelle enveloppe, pensée comme moderne par l’architecte et qui techniquement a pour objectif d’améliorer le confort thermique actuellement faible. La façade donnant sur le parvis est constitué d’une résille en inox. Disposée à un peu plus d’un mètre de la structure existante, elle sera dotée d’entrée d’air à sa base et équipée de volets commandés afin de définir de débit d’évacuation d’air chaud. La façade Ouest de ce bâtiment ainsi que la passerelle deux niveaux qui le reliera au centre social et administratif seront en verre sérigraphié.

Une petite extension sera construite devant le bâtiment de l’hôtel de ville, l’objectif est de rendre plus lisible cet accès au public. Un accès qui sera desservis par l’extension de la ligne A du tramway strasbourgeois d’ici 2015. Cette extension permettra d’exposer les diverses informations aux habitants et de leurs proposer un espace d’accueil plus confortable. L’enveloppe sera dotée d’éclairage à leds afin de créer diverses ambiances. L’acceuil sera également entouré d’une bande d’eau.

Le bâtiment social et administratif sera renveloppé par un complexe métallique isolant alucobond de 15 cm d’épaisseur. Ce dernier qui pourrait être considéré secondaire étant derrière la mairie est tout autant travaillé pour cause, il aura pignon sur le tramway.
© Atelier FilippiniLe programme indiquait de créer une connexion entre les deux bâtiments du siècle dernier. L’atelier d’architecture a opté pour une passerelle de deux niveaux de 11 mètres de long par 11 mètres de larges. L’équipe en dialogue avec la maîtrise d’ouvrage a proposé d’agrémenté ce passage avec des bureaux, salles de réunions, espaces d’attentes et de détentes. Les modifications de programme diminuent la surface vitrée initialement prévue et représentée sur ces visuels.

- Maître d’œuvre : Atelier Filippini
- Maître d’ouvrage : Ville de d’Illkirch-Graffenstaden
- Localisation : Illkirch-Graffenstaden, 67, France
- BET : OTE
- BET HQE : Otelio
- BET Acoustique : Akoustik
- Bureaux d’Études Bâtiments : Anne Muller
- Consultant HQE : Qualiconsult
- Bureau de Contrôle : Dekra
- SPS : Elyfec
- Directeur de Patrimoine Bâti et de la Logistique : Pascal Meyer
- Date de livraison : 2013
- Surface de terrain : 4 00 m²
- SHON : 2 000 m²
- Budget : 4 730 000 €
















