
Implantée le long de la rue des bonnes gens, la rénovation du groupe scolaire Saint-Jean de Strasbourg réalisée par l’agence Dominique Coulon et Associés est achevée depuis le mois d’août. L’agence nous présente sa réalisation, comprenant, un gymnase, un restaurant, une salle de musique ainsi que 18 salles de classes.
L’école St Jean est un bâtiment des années 60, très rationnel avec une organisation du plan très répétitive. Un couloir central bien proportionné dessert de part et d’autres les salles de classes.
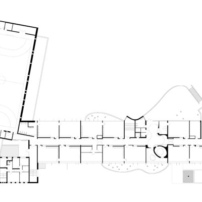
Nous avons trois niveaux rigoureusement identiques. Le plan du rez-de-chaussée est plus fluide et offre des transparences généreuses entre la rue et la cour. Le parvis public qualifie mal l’espace de la rue.

La salle de sport bénéficie d’une lumière homogène, idéale pour les activités sportives. Le bâtiment souffre d’une image dure (modénature des façades) et triste. Les potelets verticaux en béton armés donnent une image carcérale du bâtiment.
Notre projet a l’ambition de rompre avec l’idée de monotonie et de répétitivité. Le projet traite plusieurs points qui nous paraissent fondamentaux. Il consiste à requalifier le parvis public, retraiter les cours maternelles et primaires, réaménager les espaces du rez-de-chaussée, clarifier les circuits des élèves, donner une qualité et une identité aux éléments spécifiques du programme tels que la bibliothèque, la salle d’évolution, la salle d’activité, la salle de musique, etc.

Notre projet redonne des limites claires entre le trottoir et le niveau 0 des halls. Une rampe unique et deux larges escaliers distribuent le parvis qui distribue lui-même les entrées maternelle et primaire.
La solution de placer un mur clairement positionné vers la limite parcellaire sécurise le parvis en plusieurs séquences. Les halls sont conçus comme des espaces fluides qui accompagnent les parcours. Les formes arrondies et courbes évoquent un sentiment de bien être. Les courbes créent un environnement attractif pour les élèves et leurs professeurs.

Par ces formes englobantes, l’espace produit comporte le grand avantage de rompre avec la régularité des salles de classes. Les moments privilégiés, comme aller à la bibliothèque, se détendre dans la salle d’évolution, sont soulignés par la forme de l’espace. Il donne des repères spatiotemporels indispensables pour que l’enfant puisse apprécier les rythmes de la journée. De nombreuses études scientifiques appuient cette théorie et nous avons travaillé avec le professeur Claude Bonnet, neuroscientifique, pour élaborer ces plans. L’esprit du projet consiste à trouver tous les prétextes pour rompre avec la monotonie des lieux.
Le plan du rez-de-chaussée est donc un plan très dynamique qui donne une nouvelle perception des lieux, plus positive, plus accueillante, plus ludique. Les cours ont été dessinées dans la logique du hall. Le système végétal, le traitement acoustique des murs, les différentes matières contribuent à rompre avec l’image monotone et dure de la cour existante.

Au 1er étage, nous trouvons les espaces de l’école maternelle. La circulation est interrompue par des arrivées de lumière qui donnent des repères visuels et un confort indéniable. Les niveaux 2 et 3 sont consacrés à l’école primaire. Un principe identique a été repris pour donner une qualité de lumière aux circulations.

Les façades ont été entièrement revues. Le diagnostic a révélé des fissures horizontales dans les parties maçonnées. Cela nous conduit à reconsidérer les hauteurs d’allèges qui sont calées sur les hauteurs des tables des différentes sections. Pour faire face aux problèmes actuels de surchauffe des salles de cours, nous avons recours à deux types de protections solaires. Nous avons placé des lames verticales à l’extérieur pour se protéger des rayons obliques du soleil. Un dispositif de stores type screen complète les éléments de protection. Chaque salle de classe, équipée de la double flux, dispose au moins d’un ouvrant de façon à bien ventiler les locaux le matin, lorsque la température est fraîche. Les façades sont isolées par l’extérieur et nous obtenons un chiffre inférieur aux exigences demandées. Nous sommes donc plus performants.
Les toitures terrasses sont de natures très différentes. La salle de sport est conservée en l’état, puisqu’elle a fait l’objet de travaux récemment. La toiture du corps des salles de classes est recouverte d’une toiture végétalisée et de panneaux photovoltaïques sur les trois hauts jours du bâtiment.

En conclusion, notre projet a l’ambition de donner une image radicalement différente du bâtiment existant. Nous avons donné une écriture plus poétique. Nous avons fabriqué des espaces accueillants en rupture avec la monotonie de l’existant.

La ligne directrice du projet, c’est la diversité spatiale. Nous donnons une identité forte à chacun des espaces afin de fabriquer les contrastes et les repères indispensables à un bâtiment aussi imposant.

Nous souhaitons y insuffler de la douceur et de la poésie pour que les élèves et les enseignants puissent s’épanouir dans la sérénité. Nous avons conçu ces espaces pour qu’ils deviennent un outil pédagogique innovant.
- Maître d’œuvre : Dominique Coulon et associés
- Maître d’ouvrage : Ville de Strasbourg
- Localisation : 13 rue des bonnes gens, Strasbourg, 67, France
- Equipe : Dominique Coulon (architecte), Benjamin Rocchi (chef de projet), Sarah Brebbia, Olivier Nicollas, Delphine George, Guillaume Wittmann
- BET structure : Batiserf
- BET Fluides : G. Jost
- BET HQE : François Liermann
- BET Acoustique : Ingemansson France
- Paysagiste : Bruno Kubler
- Économiste : E3 Économie
- Cuisiniste : Ecotral
- Date de concours : août 2009
- Date d’études : septembre 2009 à novembre 2010
- Début de chantier : février 2011
- Date de livraison : août 2013
- SHON : 8 731 m²
- SHAB : 7 250 m²
- Budget : 10 700 000 € HT
- Photographes : Guillaume Wittmann, David Romero-Uzeda


















