
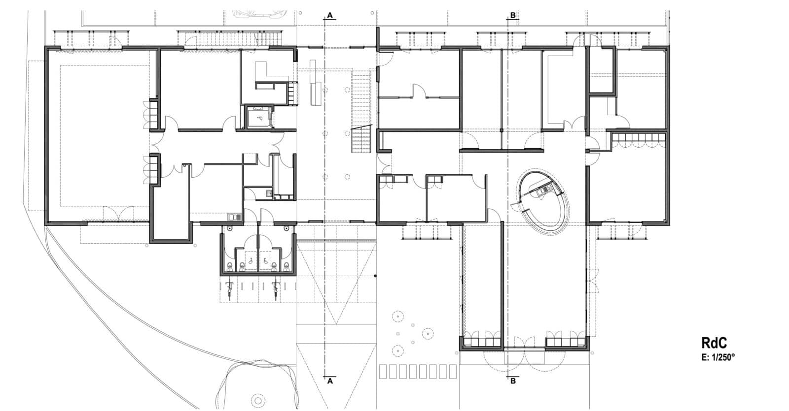
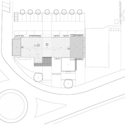
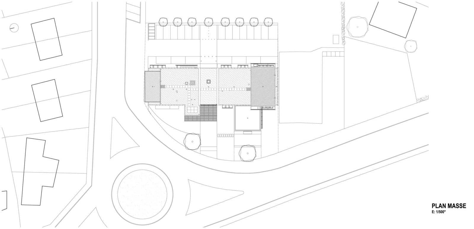
Localisé à Bruges, en Gironde, Le Forum des Associations regroupe la Maison des Jeunes, l’Entente Sportive de Bruges ainsi que d’autres associations de la commune. Confié à l’agence bordelaise MCVD architectes fondé par Maurizio Cuturi et Vital Duclos, il se développe sur deux niveaux totalisant 1 237 m². Le bâtiment est au voisinage de la plaine des sports de la ville. Le photographe Philippe Caumes nous dévoile l’intérieur de cet équipement.

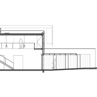
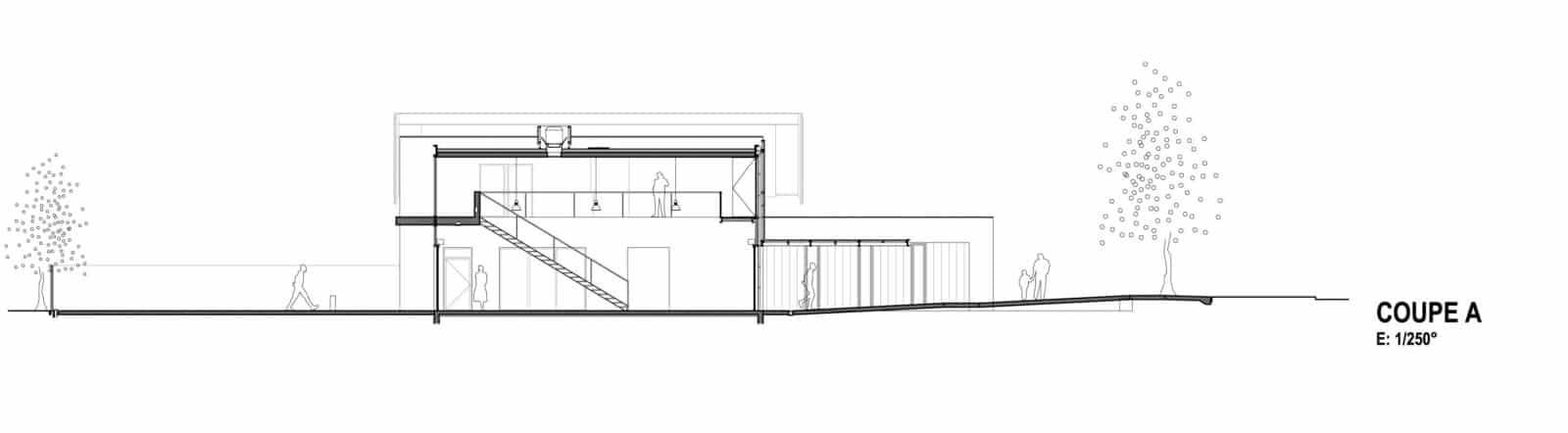
Avec un budget de 1350 €/m², l’agence a opté pour des systèmes constructifs simple, cependant elle mêle les matériaux et les couleurs dans le traitement des façades. Le bâtiment se compose d’un volume simple en BBM de couleur clair sur lequel vient se greffer divers petit volumes de couleur foncé. La salle de réunion fait également irruption au sein de la structure avec un habillage translucide et un léger porte-à-faux.

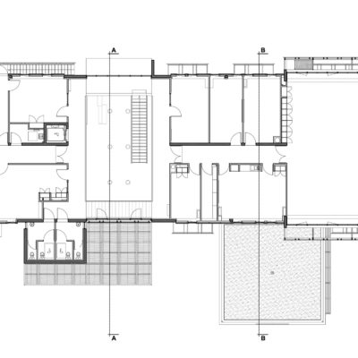
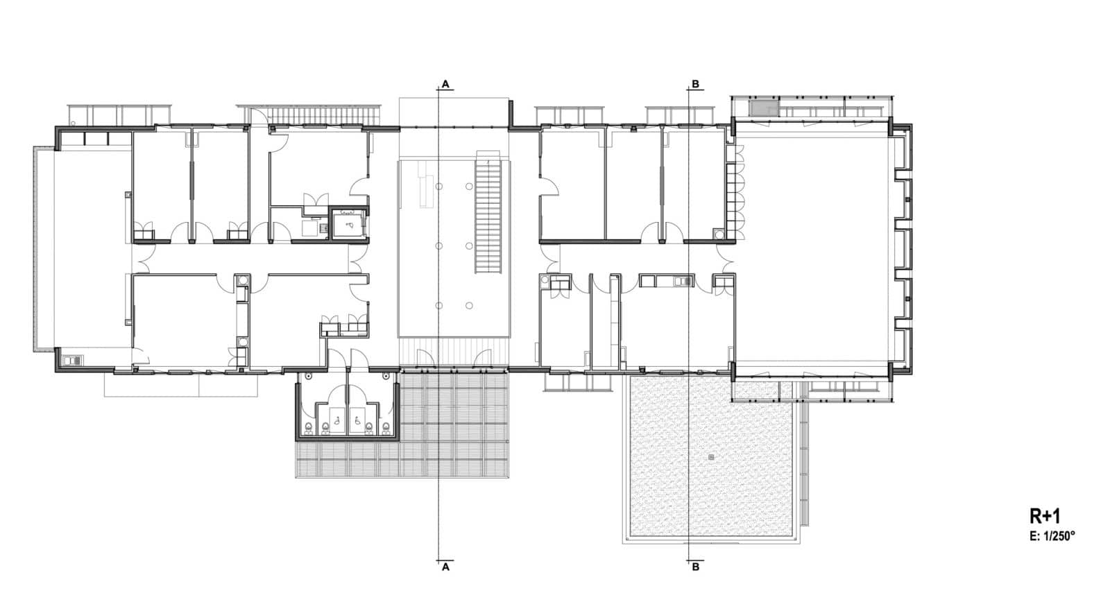
L’éclairage naturel est régulé par des pare-soleil en châtaignier, ces derniers habillent complètement les ouvertures du bâtiment offrant une intimité certaine au locaux. Le hall est revanche bien ouvert pour accueillir le public. Contrairement au programme qui demandait un hall de 30 m², les architectes ont offert un hall traversant sur deux niveaux donnant accès aux locaux.

L’attique du bâtiment est marqué par les feuilles métalliques recouvrant le complexe isolant et les débords des volumes annexes. Du point de vue énergétique, l’équipement dispose d’une pompe à chaleur pour le chauffage et le rafraichissement.

- Maître d’oeuvre : MCVD Architectes
- Maître d’ouvrage : Mairie de Bruges
- Localisation : Bruges, 33, France
- Date de concours : octobre 2005
- Date de livraison : décembre 2008
- Coût des travaux : 1 677 613 € HT
- SHON : 1 237 m²
- Photographe : Philippe Caumes










