L’agence de Pascal Gontier a livré l’année dernière l’école Justin Oudin à Issy-les-Moulineaux. Cet équipement accompagne les premiers logements de l’écoquartier Numérique de 12 hectares.

Au pied du fort d’Issy
L’école maternelle et élémentaire Justin Oudin est située sur un terrain adjacent à l’une des entrées principales du Fort d’Issy-les-Moulineaux, dans l’emprise de l’ancien fossé. L’implantation et l’organisation spatiale du bâtiment répondent à cette situation atypique d’entre deux urbain. Au nord, le long de la rue du Fort et de l’allée Lucie Aubrac l’enveloppe de l’école est régulière, unitaire et protectrice, tandis que côté rempart au sud, ses volumes ouverts et fragmentés donnent à lire ses différentes entités ainsi que les espaces de récréation plantés.

Cette disposition spatiale n’est pas sans rappeler les « demies lunes », ouvrages de protection avancée des forteresses. Pourtant ici, le caractère militaire disparait complétement pour laisser place à une architecture destinée aux enfants, douce, marquée par le dialogue du bois et du cuivre, tous deux matériaux nobles. Le soubassement est revêtu d’une peau de cuivre lisse tandis que les parties courantes sont revêtues d’une peau en épicéa, ajourée et traitée thermiquement, se prolongeant sous forme de claustras au niveau de certains ouvrants des salles de classe et des circulations. Ainsi les espaces bénéficient d’une ventilation par ouverture des fenêtres tout en restant protégés vis-à-vis des intrusions.

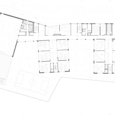
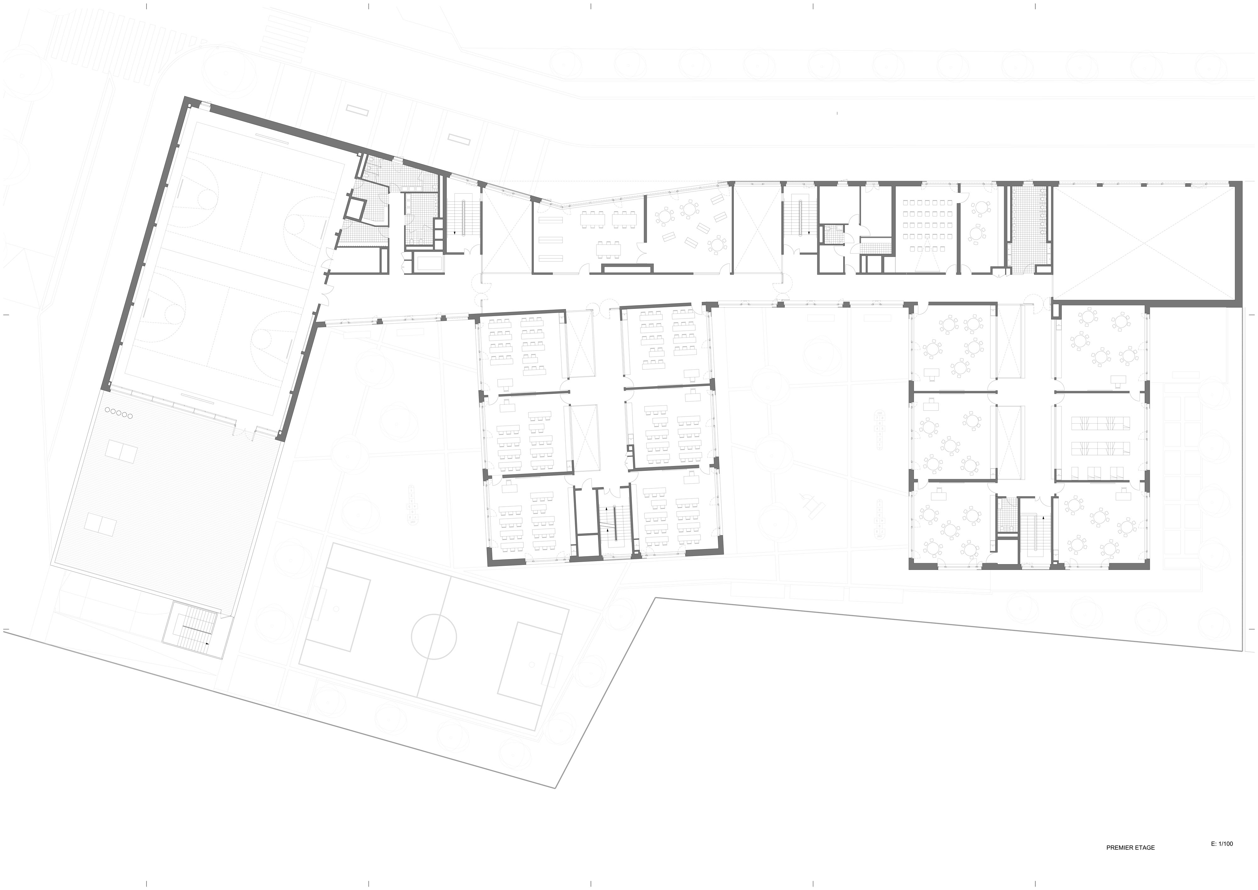
Deux écoles, trois bâtiments
Le projet s’organise en trois corps de bâtiments distincts, chacun avec son identité particulière, reliés par une galerie large et lumineuse. Cette organisation spatiale fragmentée favorise la lisibilité des espaces, la fluidité des circulations et l’éclairage naturel dans tous les lieux de l’école. Chaque bâtiment correspond à une entité programmatique : l’école maternelle, l’école élémentaire, et les locaux communs aux deux écoles. Entre les bâtiments, les espaces extérieurs sont affectés aux cours de récréation des deux écoles ainsi qu’au jardin potager.

L’accès à l’école s’effectue depuis l’allée Lucie Aubrac en traversant un espace extérieur couvert qui donne sur les deux halls d’accueil double hauteur affectés à l’école élémentaire et à l’école maternelle. Ces deux halls débouchent sur une vaste galerie qui relie les trois entités de l’école. Au premier et au second étage, deux autres galeries superposées relient les trois entités ainsi que les locaux administratifs et les locaux communs. Plus que de simples couloirs, ces espaces sont conçus comme des rues intérieures superposées qui constituent « l’épine dorsale » de l’école. Largement dimensionnés, ils échappent à la géométrique purement orthogonale habituelle dans les espaces de circulation et favorisent les échanges lors des pauses.

De tous côtés, la lumière
Les couloirs sont généreusement éclairés par la lumière naturelle grâce à de grandes surfaces vitrées ouvertes sur les deux cours de récréation. Depuis le premier étage, des parois intérieures vitrées ouvrent des vues sur les deux halls d’entrée et sur la salle d’évolution de l’école maternelle. Les deux bâtiments – école maternelle et élémentaire – se déploient autour d’un atrium central, source de lumière naturelle pour les espaces de circulations et de second jour pour les salles de classe dont l’éclairage naturel équilibré, offre aux élèves les conditions d’apprentissage les plus favorables. En effet, selon des études réalisées en Californie auprès de 21 000 élèves, la quantité et la qualité de la lumière naturelle ont une réelle influence sur la capacité d’apprentissage des élèves. Le troisième bâtiment, le long de la rue du Fort, abrite au rez-de-chaussée la cuisine et les cantines des écoles maternelle et élémentaire et au premier étage le gymnase. Largement éclairé – tant par les fenêtres sud, est ouest, que par les sheds orientés au nord pour éviter l’éblouissement – le gymnase est relié à la cours de récréation de l’école élémentaire par une terrasse à laquelle conduit un escalier extérieur.

Le paysage
Les deux cours de récréation en pleine terre, plantées d’arbres de haute tige, se prolongent par des préaux glissés sous les deux écoles, naturellement éclairés par le jour d’appoint émanant des verrières. Une bande plantée qui sert également d’espace de noue de rétention des eaux pluviales sépare ces cours de la muraille d’enceinte, et à l’est un jardin potager prolonge la cour maternelle.

- Maître d’oeuvre : Atelier Pascal Gontier
- Maître d’ouvrage : Ville d’Issy-les-Moulineaux
- Localisation : Issy-les-Moulineaux, 92, France
- Paysagiste : SLG Paysage
- BET : Igrec Ingénierie
- BET Environnement : Atelier Pascal Gontier
- BET Cuisine : Novorest Ingénierie
- Acousticien : Cabinet Lamoureux
- SHON : 5 606 m2
- Budget : 10 927 267,56 € HT
- Photographe : Hervé Abbadie

























