
Ouvert au public depuis février, le Forum de Saint-Louis dessiné par Manuelle Gautrand Architecture se caractérise par son jeu de juxtaposition de volumes. Le projet s’implante en lieu et place de l’ancienne halle de sport et salle des Fêtes qui a été démolie.
La ville de Saint-Louis compte près de 20 000 habitants, elle se situe non loin de la banlieue de Bâle en Alsace. Le projet s’implante dans un quartier essentiellement résidentiel avec de nombreux locaux d’activités de PME offrant l’hétérogénéité du site. Confronté aux jeux d’échelles du site et du programme, les architectes de Manuelle Gautrand Architecture ont cherché à en jouer pour répondre au concours lancé fin 2010. Lauréate face à Rudy Ricciotti et deux agences locales, le projet de l’agence de Manuelle Gautrand tire son idée de l’environnement et plus particulièrement des toitures de tuiles mécaniques recouvrant les différentes toitures.



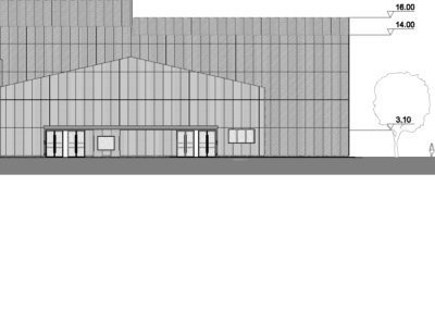
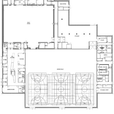
La réponse des architectes est un ensemble de 13 volumes différents alternant les pans de toitures traités avec un seul matériau, un bardage en métal déployé de couleur cuivre. Cette juxtaposition d’espaces répond également à la demande de la maitrise d’ouvrage qui était de connecter les différents programmes entre-eux. Les différents programmes s’organisent comme suit : La Salle des Fêtes de 700 places assises située au Nord, le Grand Hall multifonctionnel de 1 870 m2 situé au sud, les espaces d’accueil généraux à l’Ouest, les espaces d’accueil des scolaires à l’Est, et enfin les stockages (450 m2) au nord-Est.


Le grand Hall a pour vocation principal d’abriter les activités sportives comme le badminton dans le cadre de compétitions et de pratiques scolaires mais aussi des concerts de musique. La salle des fêtes quant à elle accueillera des banquets principalement. Certains évènements de la ville requièrent en revanche l’ensemble des deux espaces comme la Grande Foire aux livres.


Le bardage extérieur se retrouve à l’intérieur dans le traitement du bar dans un environnement gris. C’est ce duo de coloration que l’on retrouve dans les différents espaces extérieurs. Pour le mobilier, il s’agit de meubles de Vitra dont le siège suisse est à 20 km.

Ces grands espaces ont sollicité une charpente importante, pesant 350 tonnes, elle affiche des portées de 40 mètres dans le grand hall et de 30 mètres pour la salle polyvalente. Il ne s’agit pas pour les poutres de supporter une enveloppe mais deux. En effet, chaque espace intérieur a son enveloppe traditionnelle composé de béton et d’un complexe léger métallique. La seconde enveloppe est celle qui donne la morphologie au projet, des panneaux métalliques emboutis revêtue d’une peinture Akzo Nobel dont la pigmentation a été crée spécialement pour ce projet. Le plénum créé entre les deux enveloppes en toiture permet outre de loger les différents équipements techniques, de créer un espace tampon en été.
- Maitre d’œuvre : Manuelle Gautrand Architecture
- Equipe : Manuelle Gautrand, Cécile Ortolo
- Maitre d’ouvrage : Ville de Saint-Louis
- Localisation : Place Gissy, Saint-Louis, 68, France
- AMOA : S.E.R.S.
- BET Structure : AIC
- BET fluides : ALTO
- Économiste : CHOLLEY
- Acoustique : JP LAMOUREUX
- Conseil Sécurité incendie : CSD-FACES
- BET V.R.D. : OTCI
- Coordination OPC : C2Bi
- Contrôleur technique : Qualiconsult
- Coordination SPS : Veritas
- Date de concours : fin 2010
- Date d’études : 2011 – 2013
- Démarrage des travaux : octobre 2013
- Date de livraison de l’équipement : décembre 2015.
- Date d’ouverture au public : février 2016
- Surface : 5.713 m²
- Coût des travaux : 9,7 M€ HT
- Photographes : Guillaume Guerin, Luc Boegly



































