Stadium du littoral à Grande-Synthe par Olgga architectes

© Julien Lanoo
© Julien Lanoo

À Grande-Synthe, à côté de Dunkerque, les habitants disposent depuis le 4 septembre d’un nouvel équipement sportif dessiné par l’agence Olgga (Alice Vaillant, Guillaume Grenu et Nicolas Le Meur) lauréate des Albums des Jeunes Architectes et Paysagistes (AJAP) en 2010. La jeune agence fondée en 2006 s’est notamment fait connaître du public à travers une œuvre nomade Evolutiv’ qui sera exposée au Salon européen du bois et de l’habitat durable à Grenoble en 2008.

© Julien Lanoo
© Julien Lanoo

Le programme comprend une tribune de 617 places, 2 clubs houses, des vestiaires, une salle polyvalente et des locaux administratifs. Implanté sur un terrain de 12 hectares dans le quartier de Basroch, il marque un signal depuis l’autoroute. Le Stadium du Littoral, destiné aux 4000 licenciés de la ville, propose trois terrains de rugby, deux terrains de football, un pas de tir à l’arc, une piste de jogging, un anneau cycliste de 1300 mètres et très prochainement une piste de BMX.

© Julien Lanoo
© Julien Lanoo

Avec une base parallélépipédique, le volume est coupé puis évidé pour modeler les tribunes. Le projet regroupant notamment les bureaux de clubs de d’autres disciplines, les architectes ont souhaités ouvrir cette tribune aux autres sports à travers une percée transversale au centre du bâtiment. Cette terrasse offre des vue sur le paysage environnement et le parc sportif. Elle mène à une coursive permettant aux adhérents de traverser la voie en toute sécurité.

© Julien Lanoo
© Julien Lanoo

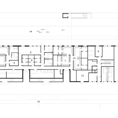
Les installations sont unifiées par une seule toiture métallique en bac acier et un seul socle en béton lasuré. Les choix des matériaux étaient restreints par le programme. Le socle de l’édifice abrite les vestiaires pour les footballeurs et les rugbymans, un sauna (n°4 sur le plan), une salle polyvalente (n°10) et une salle de musculation (n°5). Le club de cyclisme (n°16) et le club de rugby (n°17) se situe à l’étage du bâtiment, il bénéficie d’une vue privilégiée sur le parc avec de grande baies vitrées tout en restant discret vis-à-vis du public grâce à la toile tendue type stamisol perforée.

© Julien Lanoo
© Julien Lanoo

Du point de vue environnemental, le bâtiment affiche une consommation énergétique de 178 kwEP/ m²shon/an, il bénéficie de la certification THPE 2005. Le bâtiment dispose de deux chaudières à condensation et d’une VMC double flux. La toiture est dotée de 700 m² de panneaux photovoltaïques dont l’énergie produite est revendue à EDF apportant ainsi une ressource supplémentaire au fonctionnement du parc. À cela s’ajoute 40 m² de panneaux solaires thermiques pour l’eau chaude avec une couverture à 50% de ce besoin. Une éolienne au nord de la parcelle complètera les ressources énergétiques du site. La pluie est stockée dans une cuve de 8 m3.

Stadium Detail Detail Olgga 1472x1000
© Olgga architectes
  • Maître d’oeuvre : Olgga architectes
  • Maître d’ouvrage : Ville de Grande-Synthe
  • Localisation : Boulevard Mendès France, Grande-Synthe, 59, France
  • BET TCE : Sogeti ingénierie
  • BET Acoustique : Abe acoustique
  • Date de concours : 2009
  • Date de livraison : 4 septembre 2011
  • Budget : 4 064 389 € HT
  • SHON : 2 433 m²
  • Photographe : Julien Lanoo

 

 

Leave a Reply

Scroll to Top