
La VillaRte accueille le siège régional de l’entreprise Rte depuis la fin 2017. Le bâtiment a été imaginé par l’agence lyonnaise AFAA Architecture pour le compte d’Icade, il totalise une surface de 14 130 m2 pour un montant de 30 millions d’euros. Celui-ci a été récompensé par la Pyramide d’Argent 2017.
Voir aussi :
- Sky 56 à Lyon Part-Dieu par Chaix et Morel & Associés avec AFAA Architecture
- Open 6 à Lyon par AFAA Architecture

Le projet s’implante à la frange de la ZAC des Girondins, projet urbain de 17 hectares dans le 7ème arrondissement emmené par TVK et l’agence de paysage Base. Plus précisément, le projet s’ancre entre le boulevard Yves Farge et la rue Félix Brun, face au Lycée Professionnel Louise Labé. L’îlot en question était anciennement occupé par un bâtiment massif en béton utilisé par Poste-immo/Banque Postale. Il sera à présent arboré d’un parc central commun, délimité par 5 immeubles de logements et au Sud, par les présents bureaux de Rte.

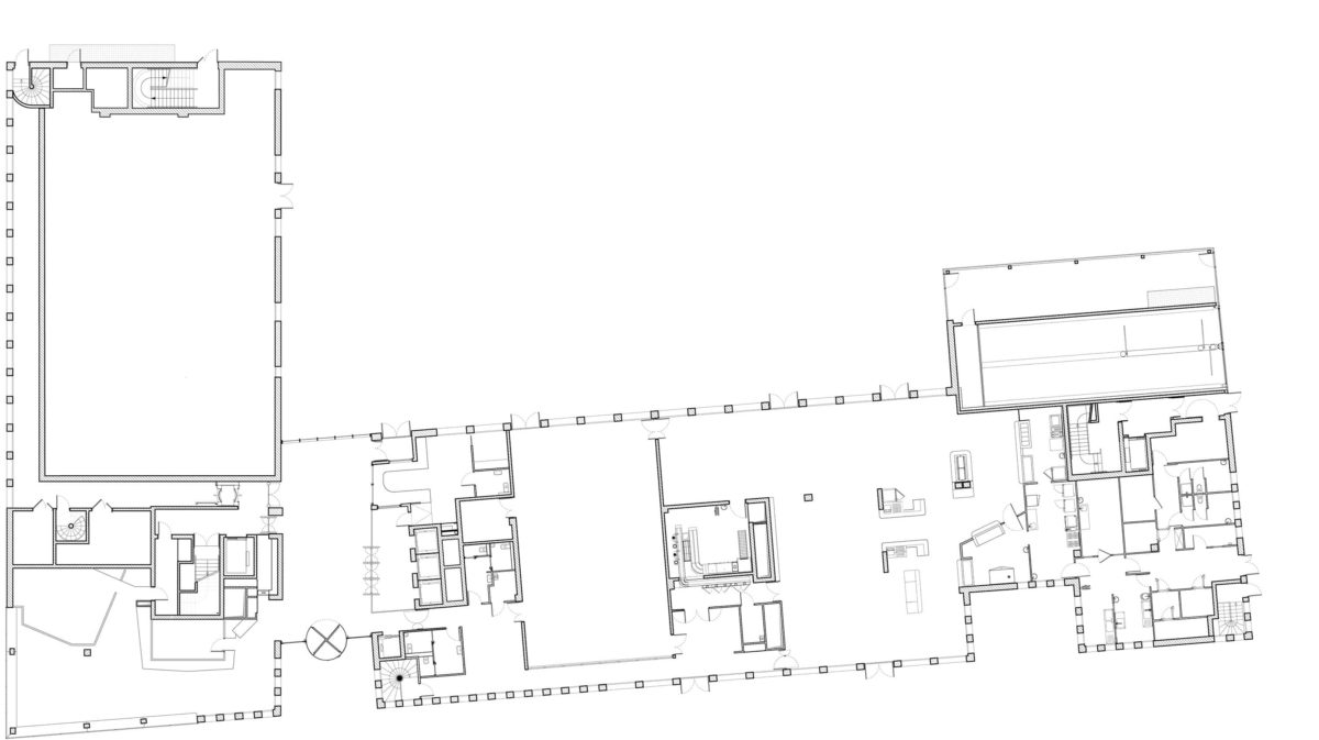
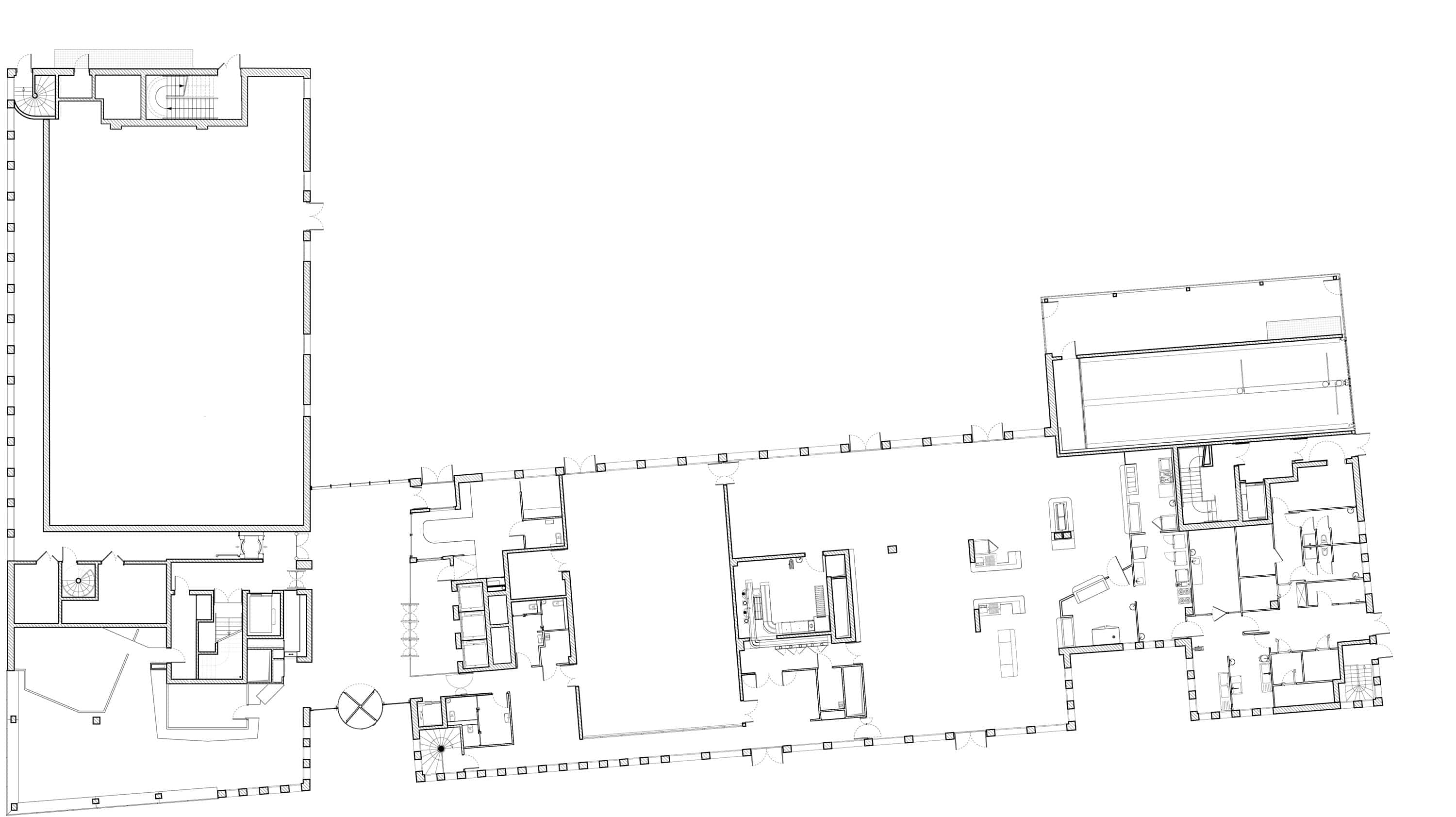
Parmi les contraintes de l’entreprise, on relèvera le besoin de sécurité, mais aussi la facilité d’accès des différents espaces de l’immeuble ayant des niveaux de sécurités différents. Du côté de l’image, c’est la volonté de s’ouvrir vers la ville avec plus de transparence sur son activité. Cela se traduit par une organisation en L avec deux ailes qui se rejoignent au sein d’une faille en verre abritant les paliers des circulations.

Bien que le bâtiment reste sobre, ce qui m’a interpellé en passant devant fut la qualité des matériaux employés. Que ce soit des menuiseries ou de la vêture en terre cuite émaillée, il est certain que l’approche de la maîtrise d’ouvrage n’a pas été de rogner sur l’enveloppe du bâtiment. Il est d’ailleurs labellisé Effinergie+.

Les architectes d’AFAA Architecture commentent : « Nous avons volontairement limité le nombre de matériaux de façade utilisés afin de concevoir une architecture sobre et maîtrisée». Afin de casser la rigueur de la trame, celle-ci est ponctuellement perforée par de généreuses baies. De plus, avec un peu d’attention, on remarque que la trame n’est pas aussi rigide que cela, elle joue en effet sur différentes largeurs de baies et joue sur les lignes de la terre cuite afin de casser la monotonie.

Derrière le vitrage des baies, se cache des éléments clefs du programme comme le restaurant, l’espace de formation ou la place du village. Les terrasses sont quant à elles revêtues de cassettes métalliques de teinte cuivrée, en référence aux câbles de cuivre utilisés dans l’électricité.
