
Isbergues, ville de 9 000 habitants située à une heure à l’ouest de Lille, s’est dotée d’un pôle culturel dessiné par l’agence Dominique Coulon & Associés.

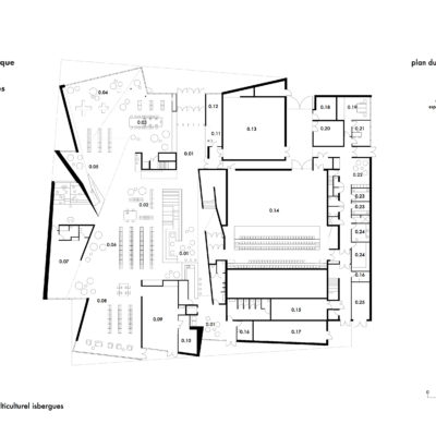
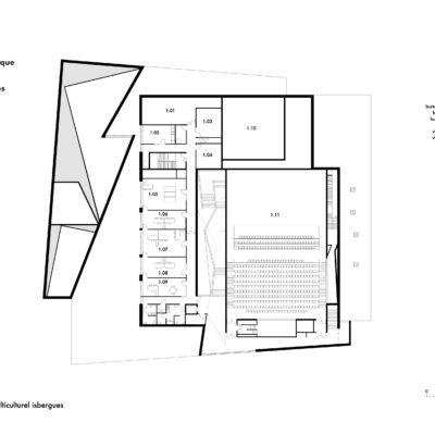
Le projet s’implante entre un parc intercommunal et un lotissement, en proche voisin, une crèche mal implantée et un petit immeuble plus conséquent. En fond de parcelle, une petite rivière nommée La Rivièrette, celle-ci est traversée par deux reprises afin de permettre l’accès au parc. L’un de ces derniers est prolongé au cœur du projet, il permet d’offrir deux entrées et dessert la médiathèque et la salle de spectacle.

Enveloppé par trois différentes textures d’inox, le satiné, le brillant miroir et le mat, le pôle culturel d’Isbergues joue avec le regard des passants au fur à mesure de leur déambulation ainsi que du temps. Tantôt ils seront attirés par les scintillements de l’enveloppe, tantôt ils seront guidés à entrer par les jeux de plis de l’enveloppe.

La volumétrie suit les différents alignements de bâtiments voisins. De nouveaux plis sont ensuite ajoutés afin de créer des cadrages depuis l’intérieur.

La salle de spectacle est traitée avec du béton bouchardé pour des raisons d’acoustique. La médiathèque, qui se développe en rez-de-chaussée, fait le choix de la sobriété et de la lumière naturelle. Les espaces de lectures sont variés et traités de manière différentes afin de répondre à chacun. On appréciera l’espace pensé pour les enfants, à la forme simple, mais qui génère chez eux ce petit sourire de plaisir.
La réalisation a aujourd’hui conquis ses usagers, il vous suffit de regarder les commentaires des habitants sur Google, où l’on peut lire le commentaire de Patrice Alba : « Moderne, bien pensé » ou encore l’avis de Jeremy Delville, qui va dans le même sens : « Superbe réalisation, bien pensé.. Un manque comblé par cette réalisation. Bravo ! ». N’est-ce pas la meilleure récompense pour un architecte ?

- Maître d’ouvrage : Ville d’Isbergues
- Maître d’œuvre : Dominique Coulon & Associés
- Localisation : Isbergues, 62, France
Coût : 6 200 000 €H.T.
Surface : 4000 m2 - Date de livraison : 2014





































