Inauguré le 25 septembre 2018 par Frédérique Vidal, Ministre de l’Enseignement supérieur, de la Recherche et de l’Innovation, le nouvel Institut des Sciences Moléculaires d’Orsay s’implante sur le plateau de Saclay. Remporté par l’agence néerlandaise KAAN Architecten associée à FRES architectes, le projet pour le compte de l’Université Paris-Sud et le CNRS se développe sur 10 000 m2 pour un budget de 20 millions d’euros.

Contexte et implantation de l’ISMO
Le plateau de Saclay se localise à 20km au sud-ouest de Paris, le site accueille de nombreuses universités et grandes écoles comme CentraleSupélec. La parcelle se situe dans une zone légèrement boisée avec une forêt à proximité immédiate.

Composition architecturale de KAAN Architecten
Le monolithe conçu s’organise selon deux épaisseurs, la première, sur la façade nord, loge les laboratoires avec leurs lasers, spectromètres et autres appareils de mesures nécessitant d’être protéger des rayons du soleil. La seconde épaisseur loge les volumes plus conventionnels qui sont les salles de réunions ou les bureaux. Cette partie est aérée par deux patios traités sous un bardage bois.

Les architectes de KAAN Architecten ont fait le choix du béton brut pour s’intégrer avec les arbres entourant le bâtiment. La façade principale suit une trame rigoureuse qui met en avant la structure par un avancement de 80 cm de celle-ci par rapport aux menuiseries. La trame est bouleversée au centre afin de signaler l’entrée de l’institut qui débouche sur un hall de toute hauteur.

La façade nord, fait le choix inverse. La trame de béton est conservée mais c’est au tour du vitrage de se mettre au premier plan, dévoilant ainsi un grand mur-rideau. Il faut ainsi attendre la nuit tombée pour lire la structure qu’elle dissimule.

À l’intérieur, le plafond revêt des panneaux Rockfon® Mono® Acoustic blancs qui viennent conforter le caractère propre du programme. Cet espace est coloré à travers le rayonnage sur deux niveaux de livres, que l’on peut apercevoir à travers les garde-corps en verre feuilleté. Au-dessus, un amphithéâtre vient s’installer au niveau des deux derniers niveaux, celui-ci est traité avec du chêne, clin d’œil de l’environnement voisin.

L’enjeu des architectes a été de faire en sorte que les usagers se sentent dans le parc en traversant le bâtiment, c’est ce qui explique l’utilisation de grands vitrages et la transparence des garde-corps pour les circulations.

Choix techniques et environnementaux
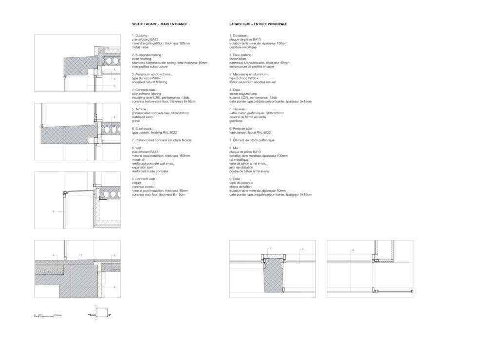
Les façades Est, Ouest et Sud sont isolées avec une laine minérale de 100 mm d’épaisseur qui viennent par-dessus les éléments préfabriqués en béton et les menuiseries. Les planchers sont en prédalles précontrainte et habillés d’un revêtement de sol en polyuréthane. La toiture reçoit quant à elle une végétalisation sur les surfaces qui n’abritent pas les équipements techniques.
