L’Atelier Dutrevis a livré à la rentrée le groupe scolaire de Gargenville dans les Yvelines. Lors du concours remporté en octobre 2015, les architectes étaient face à l’Atelier 2A+ et au cabinet d’architecture Firon & Associés. L’atelier Dutrevis a remporté le concours d’architecture notamment pour son insertion dans le site et la perception de celui-ci. Le projet construit d’une surface de 1 940 m2 SHON a été réalisé pour un budget de 4 500 000 € par l’entreprise Colas.

Contexte et implantation du groupe scolaire de Gargenville
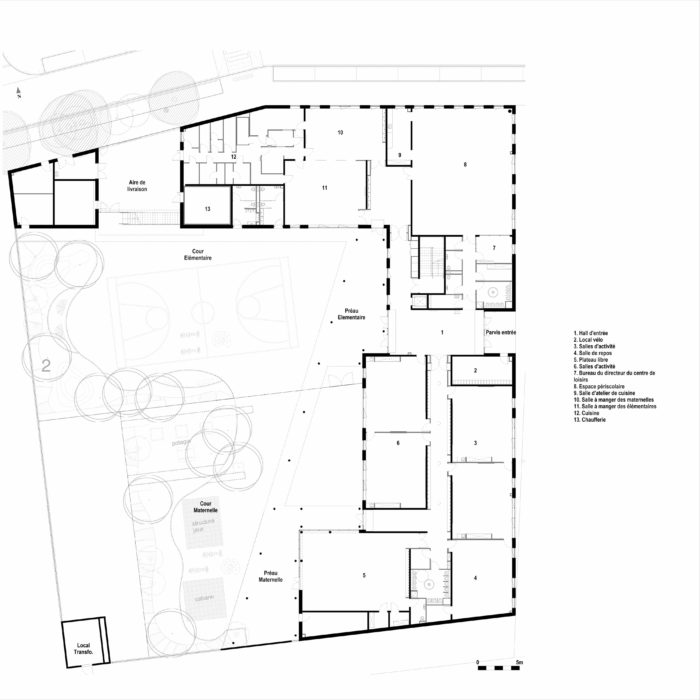
Gargenville est une ville des Yvelines située à l’ouest de Mantes-la-Jolie comptant 7 000 habitants. La commune se situe à la frange du Parc Naturel du Vexin Français. La ville est aussi connue dans le BTP pour abriter la plus grande cimenterie de France, détenue par Ciments Calcia. Le groupe scolaire des Hauts de Rangiport se situe au Sud de la ville, non loin de la Seine, sur une parcelle de 3 700 m2, en lieu et place d’une ancienne friche industrielle. Il s’insère dans une ZAC aménagée par l’architecte-urbaniste COBE et le paysagiste Mutabilis. Cet espace comprendra à terme 49 000 m2 de logements et 8 900 m2 d’activités tertiaire.

Composition architecturale signée par l’Atelier Dutrevis
Le groupe scolaire suit un plan en équerre, marquant ainsi les limites de la rue et de l’espace public menant à l’entrée. De l’autre côté du bâtiment, les deux cours de récréation sont unifiées par la toiture d’un préau qui vient rompre l’orthogonalité du projet. Les nez de dalles sont volontairement avancés afin de créer une protection solaire pour les salles de cours et d’activités.

À l’intérieur, l’école maternelle se déploie sur la partie Est en rez-de-chaussée. La partie restauration vient s’implanter le long de la rue tandis que l’angle du bâtiment abrite la périscolaire. Les salles de classes de l’école primaire se logent à l’étage, où viennent aussi s’implanter les locaux de l’administration de l’école.

Choix techniques et environnentaux
La structure constituée de voiles et de poteaux-poutres en béton est habillée avec un bardage en panneaux de fibres de ciment Equitone fabriqué par Eternit. De couleur vert, le bardage rappelle ainsi l’environnement qui l’entoure et l’importance du végétal pour la ville de Gargenville, cette façade colorée a aussi pour objectif de renvoyer une image dynamique du quartier nouvellement créé. Le socle est quant à lui réalisé avec des prémurs matricés avec isolation intégrée de chez IDSB .

Côté environnement, la construction est labellisée BEPAS (Bâtiment à Énergie Passive) et suit les exigences de la RT 2012 avec une différence de 15%. Pour ce faire, les architectes ont mis en œuvre une isolation par l’extérieur, des menuiseries en aluminium à rupteur de pont thermique de marque Schüco.

Interrogés par Actuarchi, les architectes précisent que le chauffage au sol est «assuré par une chaufferie gaz équipée de 2 chaudières gaz basse température à condensation ». La ventilation à double-flux permet la récupération d’énergie.