L’agence d’architecture canadienne Reigo & Bauer vient de réaliser la Galley House, une extension de maison victorienne totalisant désormais 200 m2 de surface de plancher. Les architectes ont été aidé du bureau d’études Structure Blackwell, l’entreprise JH Reynolds Contracting s’est quant à elle chargée de la construction.

Contexte et implantation
La maison s’installe dans le quartier de Roncesvalles à Toronto au Canada. Le quartier est au bord du Lake Ontario, qui sépare le Canada des États-Unis, il est bordé à l’ouest par le High Park. Culturellement, le quartier abrite de nombreux ressortissants polonais.

Comment rendre plus agréable une maison victorienne ?
La demande du client formulée aux architectes était de rendre plus agréable à vivre leur maison victorienne. L’architecte associé Merike Bauer explique la réponse architecturale ainsi : « Nous avons abordé ce dossier en réexaminant deux éléments essentiels : le schéma de circulation dans la maison et l’accès à la lumière naturelle ».

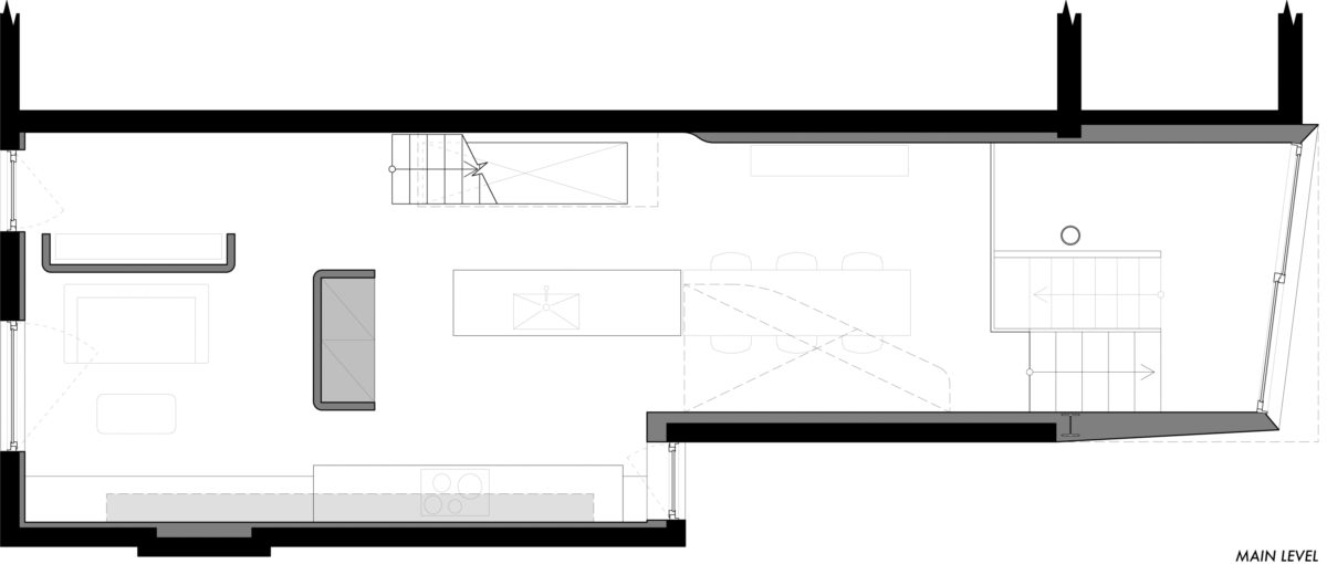
Le projet se traduit par une extension sur deux niveaux en ossature bois du côté du jardin. La parcelle de terrain étant étroite, les architectes ont usé des formes pour optimiser l’espace et la lumière de la Galley House. L’extension permet de faire jaillir la lumière naturelle dans la pièce de vie qui de fait devient profonde. C’est pour cela que le volume principal se clos par une grande baie donnant sur le jardin.

L’extension, au niveau du rez-de-chaussée s’achève par un demi-niveau qui rejoint l’altimétrie du terrain naturel. Situé à environ 1 mètre en dessous du niveau principal, il permet de masquer deux éléments du quotidien : les manteaux et les jouets des enfants. En effet, les enfants bénéficient d’une petite aire au bord de la pelouse pour jouer, à l’écart des parents, le mur opposé à l’escalier quant à lui reçoit un équipement nécessaire mais rarement agréable à voir quand il est chargé, le porte-manteau.

Un jeu de charpente
Comme dit plus haut, l’accès à la lumière naturelle était l’un des enjeux pour ce chantier de maison. Afin d’y répondre, les architectes de Reigo & Bauer ont incliné le pan de mur du première étage. De suite, la fenêtre oblique fabriquée par Alumilex située sur ce pan de mur permet à la fois de faire entrer la lumière à l’étage mais joue aussi le rôle de puits de lumière pour le rez-de-chaussée. Remarquez également que ce pli de charpente bénéficie à une fenêtre existante située sur la façade arrière.

L’ossature bois de la Galley House est revêtue d’un bardage en tuile métallique. Pour la matérialité de l’enveloppe de la maison, les architectes de Reigo & Bauer ont orienté leur choix vers un matériau qui soit mis en œuvre à la fois en bardage mais aussi en toiture. C’est ainsi qu’ils ont choisis une tuile métallique en forme de losange. Ces tuiles sont utilisées dans deux teintes opposées, le noir et le blanc accentuant la dissociation des niveaux.

Je vous invite à regarder les différentes axonométries de la construction dans la galerie d’image en bas de page qui mettent en avant les détails constructifs de l’ossature bois.