Le cabinet norvégien Jarmund/Vigsnaes Arkitekter a réalisé pour le compte de Living Architecture cette maison de vacances à Thorpeness dans la région de Suffolk au Royaume-Uni.
Longeant les dunes, d’où son appellation, la maison remplace une construction existante. Elle intègre le programme de location de Living Architecture qui propose des maisons de vacances signées par des architectes de renoms comme la Balancing Barn de MVRDV.
Afin de pouvoir construire l’édifice, les architectes ont dessinés une volumétrie proche des habitations environnantes. La séparation entre l’espace nuit privé et l’espace jour familiale est saisissante.
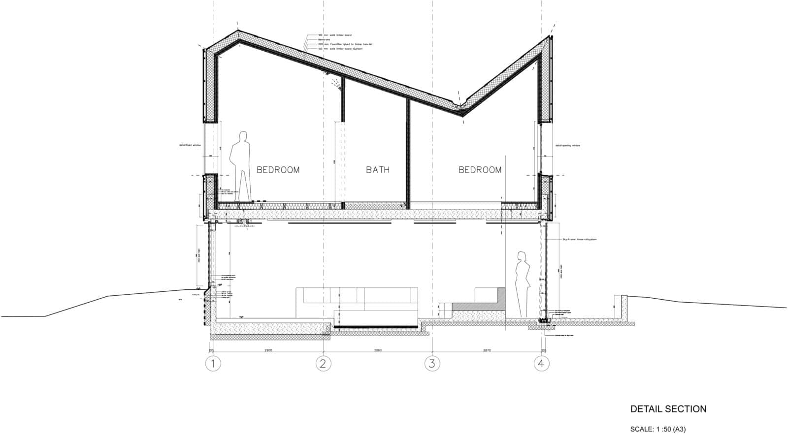
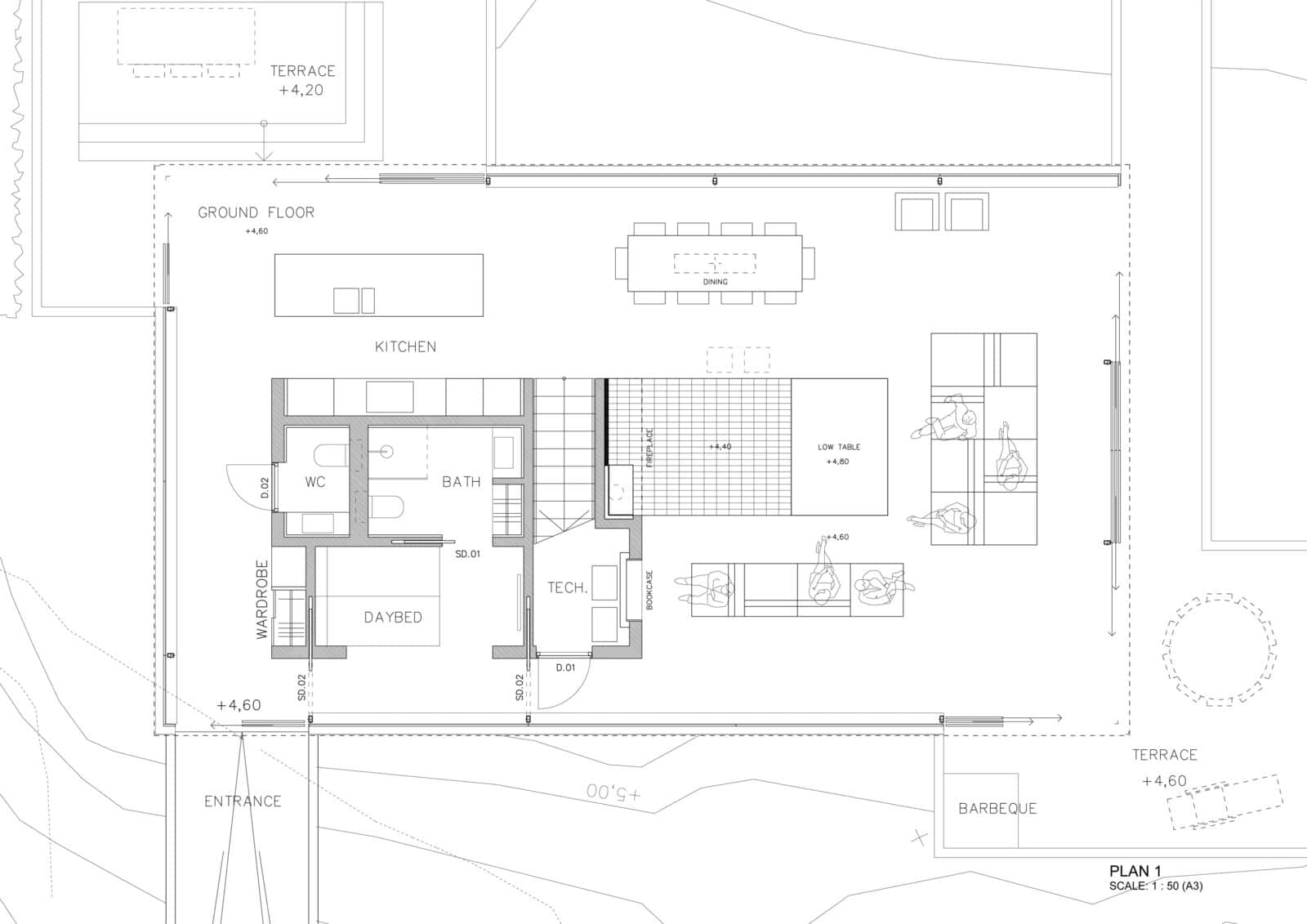
Le rez-de-chaussée repose sur une série de poteaux métalliques ainsi qu’un noyau en béton permettant de faire traverser les différents flux vers le niveau supérieur. Sa peau extérieure est uniquement constituée de verre. Les menuiseries employées permettent d’ouvrir chaque angle. Le niveau ainsi que les terrasses l’enveloppant sont enterrés afin de se protéger des vents forts. La dématérialisation du RDC offre la sensation de légèreté avec des espaces privés qui flottent.
L’étage oublie l’orthogonalité du socle de la maison, la structure laisse place à une ossature en bois massif couverte par des éléments foncés de teintes similaires aux couvertures voisines mais que l’on retrouve plus souvent pour des pignons ou des hangars. Quatre chambres avec salle de bain se répartissent aux quatre coins de l’étage. Chaque chambre est identifiable depuis l’extérieur. Vous pouvez voir une vidéo de ce projet avec Hakon Vigsnaes sur le site du promoteur.
- Maître d’oeuvre : Jarmund/Vigsnaes Arkitekter
- Maître d’ouvrage : Living Architecture
- Localisation : Thorpeness, Suffolk, Royaume-Uni
- Équipe : Einar Jarmund, Håkon Vigsnæs, Alessandra Kosberg, Anders Granli.
- Architecte associé : Mole Architects Ltd.
- BET Structure : Jane Wernick Associates
- BET Structure bois : Eurban
- Économiste : Boyden Group LLP
- Entreprise : Willow Builders
- Date de livraison : décembre 2010.
- Surface : 250 m²
- Photographes : Nils Petter Dale, Ivar Kvaal


























